Ihre Browserversion ist veraltet. Wir empfehlen, Ihren Browser auf die neueste Version zu aktualisieren.

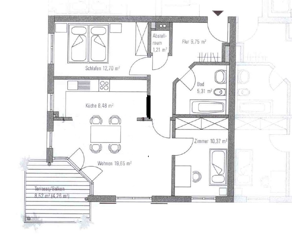
Die Wohnung hat ein Wohnzimmer  mit offener  Küche, ein Schlafzimmer  mit Doppelbett, Ein Kinderzimmer mit Schlafsofa  und Etagenbett. Sie liegt im Erdgeschoss und hat eine Terrasse. Zur Wohnung gehört  ein Tiefgaragenstellplatz